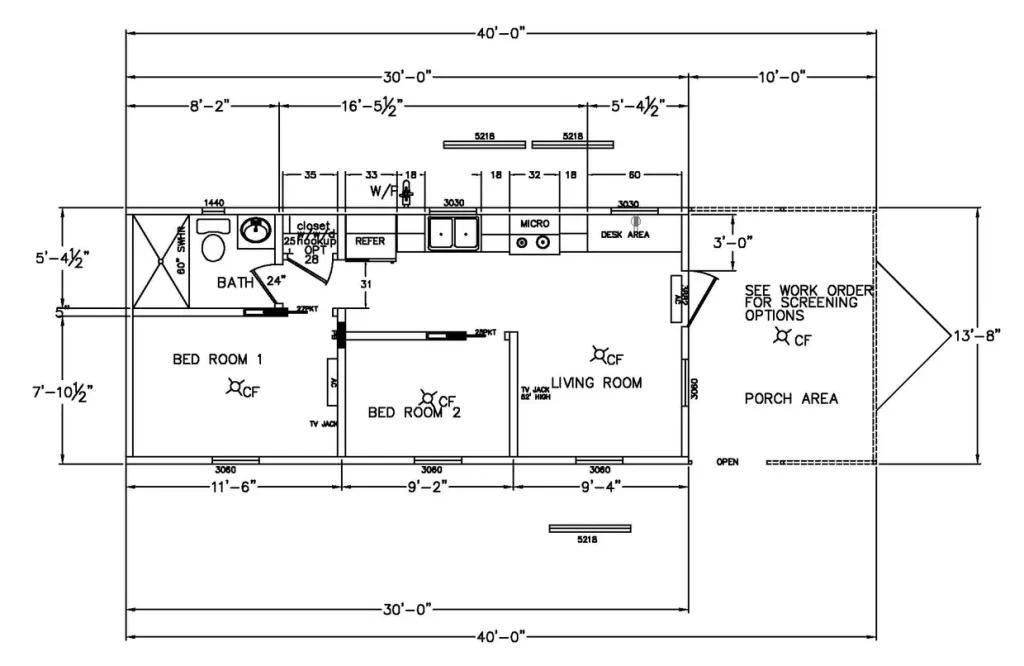
Autumn Breeze 4B 125 offers one of the most versatile layouts in our collection, blending dual bedrooms, a central kitchen, a full bath, and a large screened porch into a compact and comfortable footprint. With a main unit length of 40′-0″ and a width of 11′-8″, this model is an excellent option for families, couples needing an office or guest room, or investors seeking a highly rentable two-bedroom Park Model RV.













Autumn Breeze is built by 4B Cabin Company using top-tier materials and proven building methods for long-term durability and comfort.


Upgraded finishes and customizations are available throughout.
Autumn Breeze 4B 125 offers a thoughtful, multi-room layout that works perfectly for families, hosting guests, or long-term living.

When you purchase from Living Well Cottages, you benefit from our direct installation experience and transparent guidance.
We walk buyers through:
We advise buyers on common financing options and the importance of preparing at least $10,000 for delivery, transport, and installation expenses.
Call us or click the button below to receive a detailed, no-surprise quote for the Autumn Breeze 4B 125, including delivery and expert advice on your unique setup costs.
10 Years Airbnb Superhost • Proven Rental Success • Real-Life Tiny Home Operators