A family-friendly Park Model RV with bunk space, a screened porch, and a smartly organized living-dining layout.
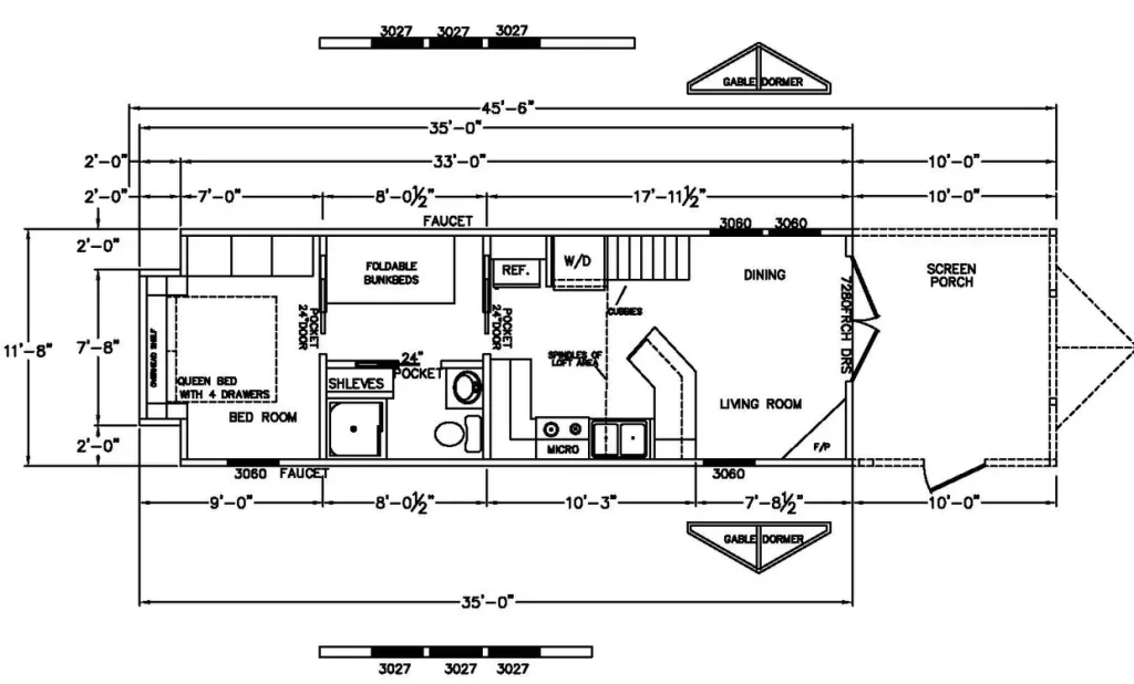
The Polar Pines 4B 109 is a versatile Park Model RV designed for families, couples, or rental owners who need extra sleeping capacity without sacrificing comfort or flow. With a main unit length of 35’-0”, an overall footprint of 45’-6” including the screened porch, and a width of 11’-8”, this model blends efficient design with excellent livability. The floor plan features a private queen bedroom, foldable bunk beds, a full kitchen, a dedicated dining space, and a cozy living room with clear sightlines throughout. For scenic properties, the 10’-0” deep screened porch makes this one of the most relaxing layouts in the lineup.

















The Polar Pines 4B 109 includes the same proven construction and insulation standards that define every Living Well Cottages model—built by 4B Cabin Company for long-term performance in all climates.


Customization available for finishes, counters, colors, and upgrades.
The Polar Pines 4B 109 layout delivers outstanding sleeping capacity and open living space—ideal for families, rental units, or owner-occupied setups that require flexibility.

Your purchase includes more than the home itself—it includes seasoned guidance rooted in real-world installations since 2017.
We provide clear, no-nonsense guidance on:
We assist with lender expectations and share what buyers should prepare for.
We recommend at least $10,000 saved for transport and site setup.
Call us or click the button below to receive a detailed, no-surprise quote for the Polar Pines 4B 109, including delivery and expert advice on your unique setup costs.
10 Years Airbnb Superhost • Proven Rental Success • Real-Life Tiny Home Operators