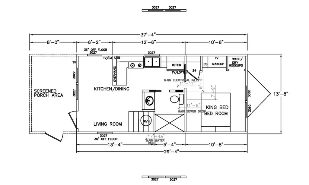
The Starry Skies 4B 103 Special is designed with a proven layout that maximizes both comfort and usability, often favored for its efficient footprint. With an overall length of 42′-3″ and a width of 11′-8″, this Park Model RV is an ideal solution for first-time buyers, an income-generating vacation rental, or placement within an RV park.
We chose this model because similar designs have been highly successful in our own proven rental portfolio since 2017. This history gives us unmatched insight into setup, design, and maximizing your investment.


















Built by 4B Cabin Company, the Starry Skies model maintains high construction standards, ensuring durability and energy efficiency in all 48 mainland states.

The Starry Skies 4B 103 Special utilizes its 34′-3″ long main structure to create clear zones for living and privacy:

We offer highly competitive pricing compared to the market, and our most valuable asset is the in-depth knowledge we provide every customer.
We will share knowledge on how to finance your tiny home and offer precise expectations regarding the $10,000 or more in savings needed for site preparation, utility hookups, and unexpected costs.
Call us or click the button below to receive a detailed, no-surprise quote for the Starry Skies 4B 103 Special, including delivery and expert advice on your unique setup costs.
10 Years Airbnb Superhost • Proven Rental Success • Real-Life Tiny Home Operators