A bright, open-concept Park Model RV with an extended porch and efficient single-level living.
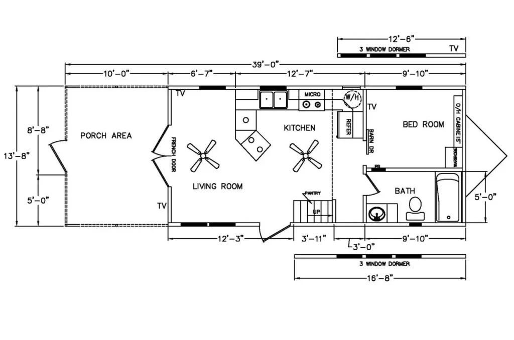
The Evergreen Cottage 4B 105 combines an inviting layout with smart, well-planned spaces that make daily living easy. With an overall length of approximately 45 feet (including porch) and the standard Park Model width of 11′-8″, this model features an extended 13′-8″ deep front porch, a spacious living room, a full kitchen with abundant counter space, and a private main-floor bedroom. Ideal for small families, couples, vacation properties, or long-term living, Evergreen Cottage is a proven layout—comfortable, functional, and ready to be customized to your taste.
















Built by 4B Cabin Company, the Evergreen Cottage 4B 105 shares the same high-quality construction and insulation found across all our models. This ensures long-term durability, energy efficiency, and year-round comfort.


All standard features may be upgraded. Paint and stain choices can be customized using Sherwin-Williams colors.
The Evergreen Cottage 4B 105 offers a clean, intuitive layout—ideal for homeowners who want everything on one level without lofts.
Evergreen Cottage is designed for smooth circulation, keeping every essential space on the main level. This makes it an excellent model for:

We offer competitive pricing due to our streamlined business model—and our experience helps you avoid the guesswork other buyers often face.
You’ll receive expert help with:
We help buyers understand what lenders typically require and recommend having at least $10,000 saved for setup costs, based on years of installing units in real-world conditions.
Call us or click the button below to receive a detailed, no-surprise quote for the Evergreen Cottage 4B 105, including delivery and expert advice on your unique setup costs.
10 Years Airbnb Superhost • Proven Rental Success • Real-Life Tiny Home Operators