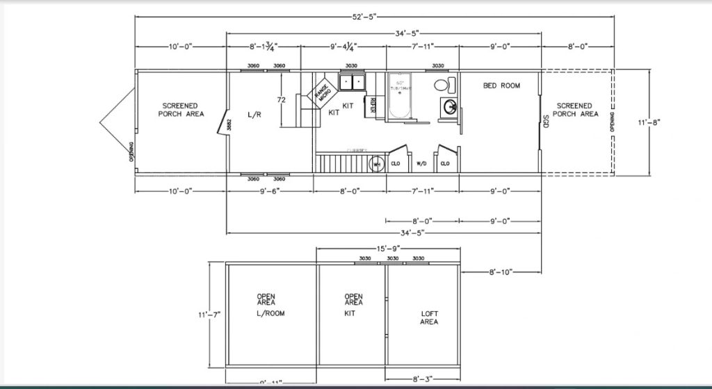
The River Stone 4B 115 stands out in our lineup for its balanced design, generous loft area, and two screened porches—one at each end of the home. With a total length of 52′-5″ and a width of 11′-8″, this model creates versatile living opportunities for families, couples, and short-term rental owners who want strong curb appeal and flexible sleeping or storage space. The full-length loft dramatically increases usable square footage, while the dual porches turn this model into a true indoor–outdoor retreat fit for mountain, lakeside, or wooded properties.










Built by 4B Cabin Company, River Stone shares the same reliable construction and proven insulation package found across all Living Well Cottages models.


All colors and finishes may be fully customized.
River Stone 4B 115 is one of the most distinctive floorplans in the series, offering rare symmetry, enhanced privacy, and significant loft potential.

Our guidance goes far beyond the purchase—we provide real-world setup expertise earned through years of installing and operating tiny homes on varied terrain.
We help you navigate:
We assist buyers in understanding common lending requirements.
We recommend at least $10,000 set aside for setup and delivery.
Call us or click the button below to receive a detailed, no-surprise quote for the River Stone 4B 115, including delivery and expert advice on your unique setup costs.
10 Years Airbnb Superhost • Proven Rental Success • Real-Life Tiny Home Operators