The perfect 1-Bedroom Park Model RV, offering the ideal balance of space, privacy, and proven efficiency.
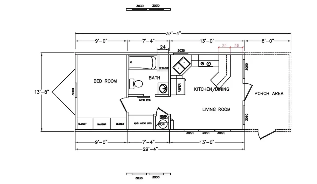
The Blue Lagoon 4B103 Hybrid is a popular and spacious Park Model RV, combining an efficient 1-bedroom layout with generous open-concept living. Measuring 42′-3″ in overall length and 11′-8″ wide, this model delivers the durability required for a reliable primary residence (first-time buyers) or a successful vacation rental.
Its well-organized interior and robust construction make it highly suitable for placement in approved RV parks or on private land. Our team’s successful operation of similar units since 2017 means we provide unmatched real-world setup knowledge alongside your purchase.









Built by 4B Cabin Company, the Blue Lagoon is designed for long-term satisfaction.

The Blue Lagoon 4B103 Hybrid uses its 34′-3″ long main structure to create an intelligent and functional flow:

We offer competitive unit pricing because the overhead of our established rental business carries the cost. This translates to direct savings for you.
We provide clear knowledge on how to finance your tiny home and ensure you are prepared for the necessary budget of $10,000 or more required for site work and utility connections.
Call us or click the button below to receive a detailed, no-surprise quote for the Blue Lagoon 4B103 Hybrid, including delivery and expert advice on your unique setup costs.
10 Years Airbnb Superhost • Proven Rental Success • Real-Life Tiny Home Operators