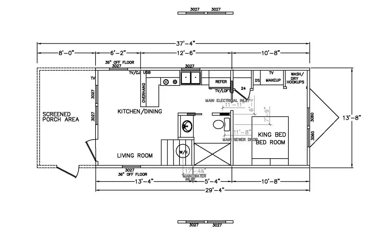
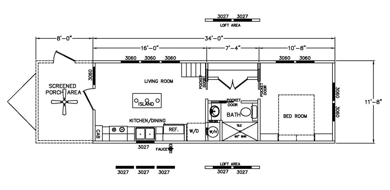
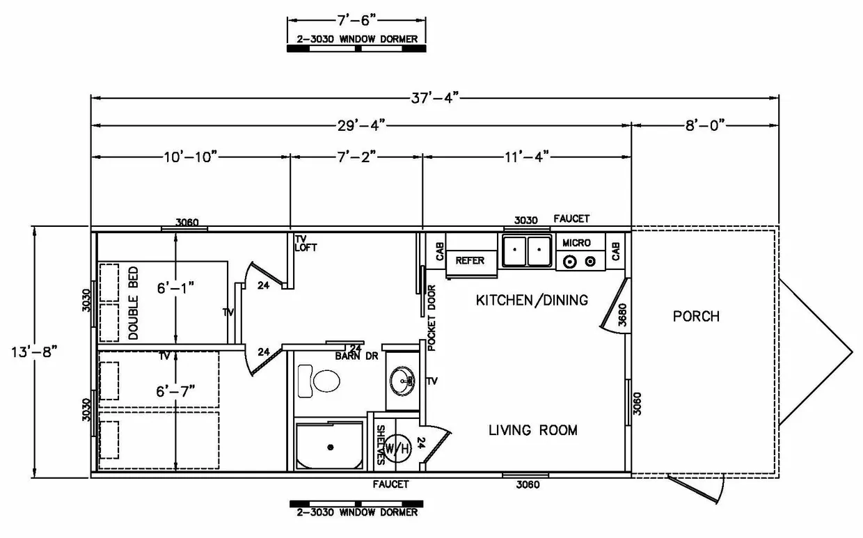
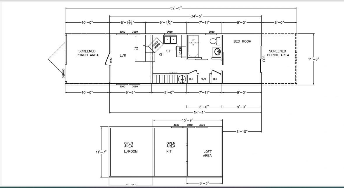
Thoughtfully designed models with custom upgrade options to match your lifestyle.
10 Years Airbnb Superhost • Proven Rental Success • Real-Life Tiny Home Operators

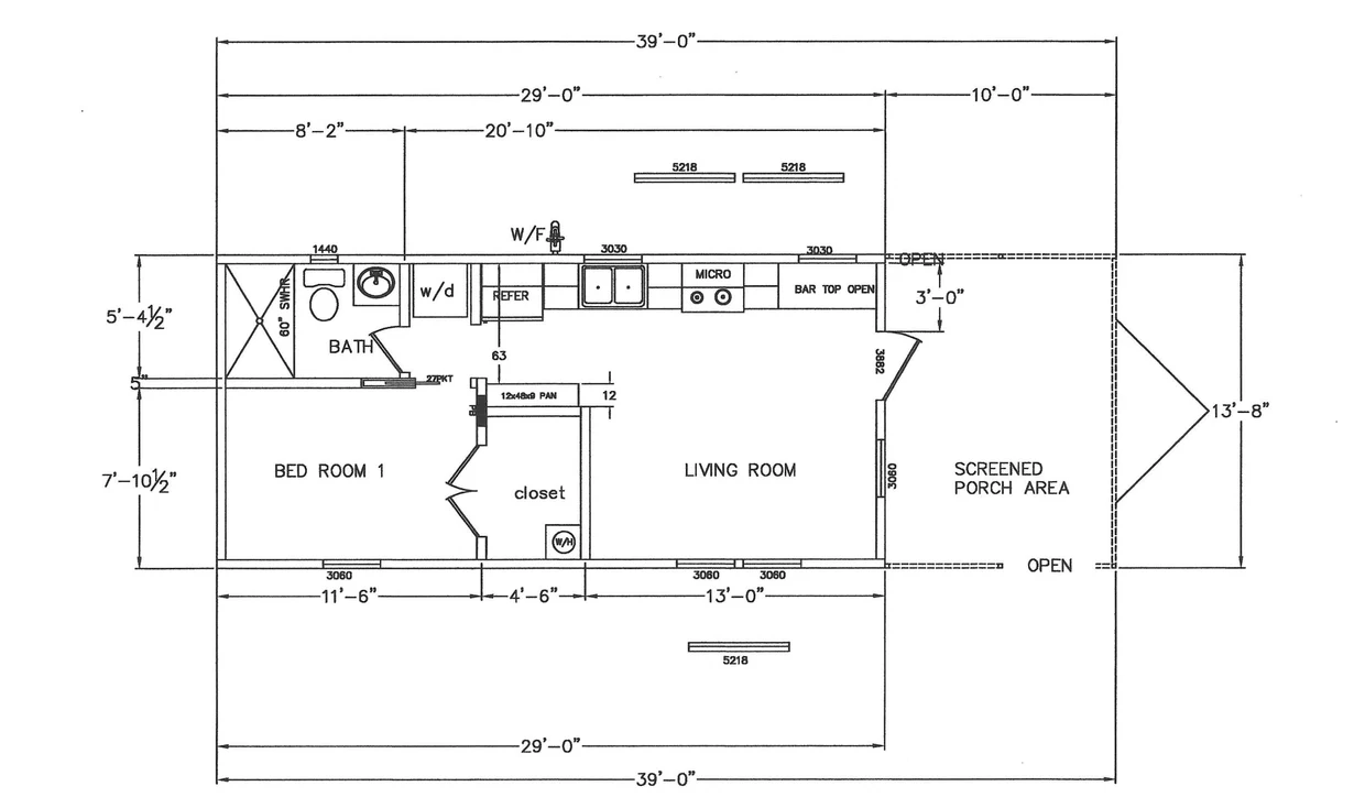
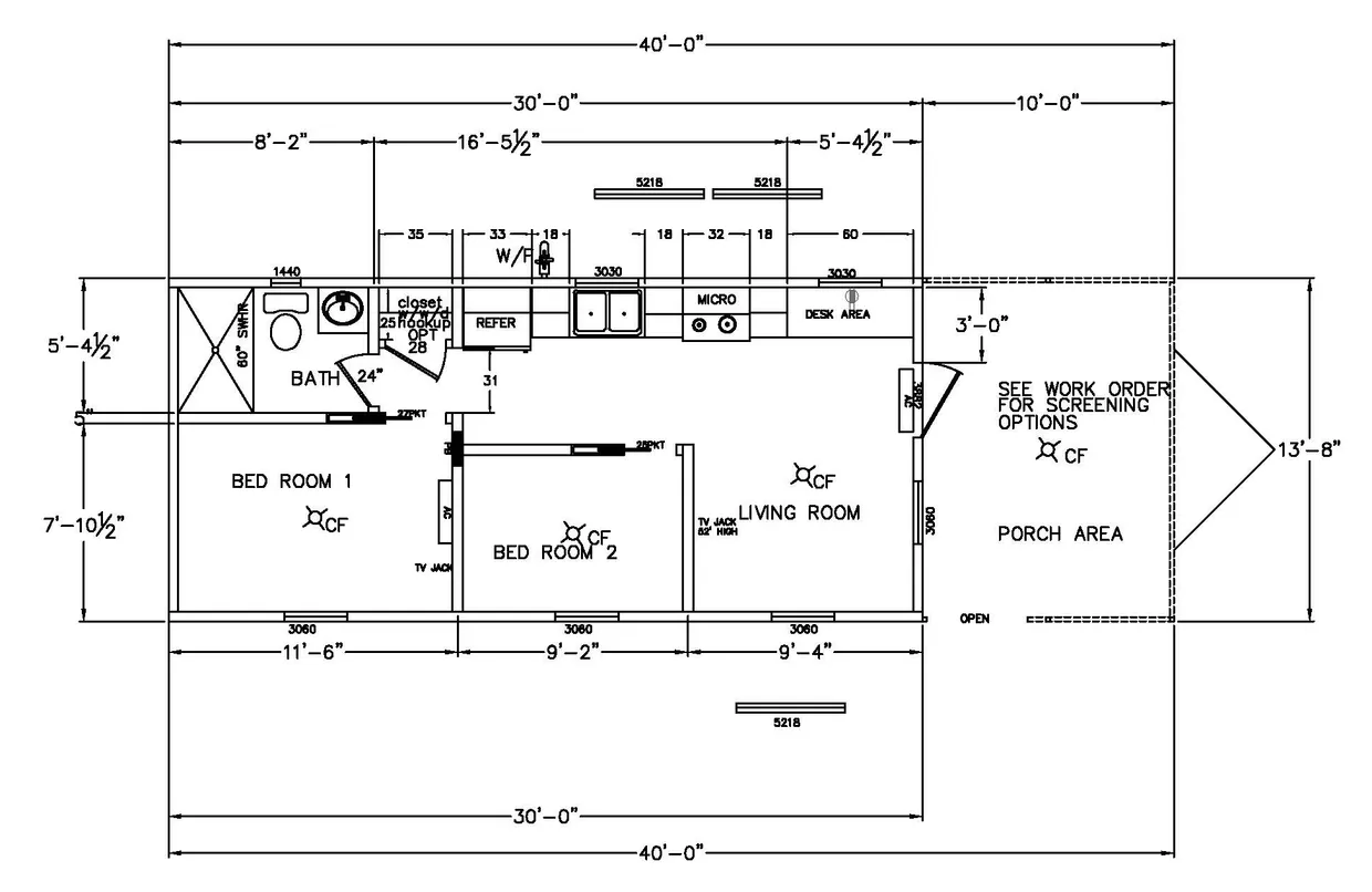
We don’t just sell tiny homes — we own, install, and operate them ourselves. Our models include layouts commonly used for short-term rental tiny homes and long-term occupancy. Each home is designed and built by our trusted manufacturer, 4B Cabin Company, and selected based on years of hands-on installation and operational experience.
Whether you’re planning a private cabin, a cabin rental, or a tiny house rental in Brevard, NC, every model reflects what works in real settings — not just showroom displays.
Looking for park model trailers for sale or working with a trusted park model dealer in Brevard? View our models and request a detailed quote backed by expert setup and zoning guidance.
Living Well Cottages provides practical housing solutions for buyers, investors, and property owners looking for reliable tiny homes and park model RVs in Brevard, North Carolina. Our lineup supports Tiny Home sales in Brevard as well as rental-focused models designed for durability, efficiency, and long-term use. Every model we offer is selected based on real ownership experience — not trends or sales hype.
Many of our homes are well-suited for short-term rental tiny homes, including layouts commonly used for tiny house short-term rental properties in Brevard, NC. These models are designed with comfort, storage, and efficient use of space in mind, making them ideal for guests while remaining easy to maintain for owners. Depending on zoning and site conditions, these homes can also work for tiny house monthly rental setups.
For buyers exploring alternatives to traditional housing, our models can function as a modular home, a manufactured home, or a private mobile home for rent in Brevard. These options are frequently used on private land, vacation properties, or secondary lots where flexibility and predictable costs matter. We help buyers understand how these homes fit local zoning rules, utility requirements, and delivery access before moving forward.
As an experienced park model dealer, Living Well Cottages offers a range of certified homes through our park model RV sales program. Our park model trailers in Brevard are selected for long-term durability, efficient transport, and livable interior layouts. Buyers looking for park model trailers for sale in Brevard benefit from guidance that goes beyond the purchase, including setup planning, site preparation, and realistic budget expectations.
Our models are also popular choices for creating a private cabin in Brevard or for a professionally managed cabin rental. Each home can be customized with floor plan adjustments, finishes, and functional upgrades to match your goals, whether that’s personal use, guest accommodations, or rental income. Customization is standard, not an add-on, allowing buyers to create a space that fits both lifestyle and budget.
If you’re considering Tiny Home sales in Brevard, rental-ready tiny homes, or park model RV options, Living Well Cottages offers proven models, clear guidance, and support rooted in real experience — helping you move forward with confidence and clarity.

