The perfect 1-Bedroom Park Model RV, offering the ideal balance of space, privacy, and proven efficiency.
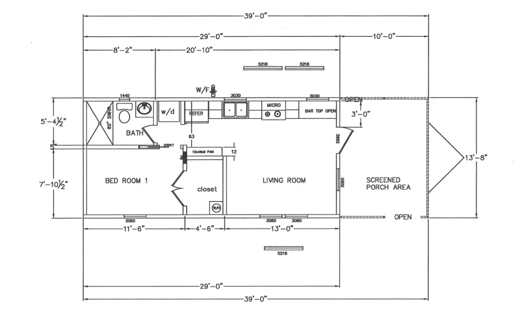
Trailhead 4B 126 offers a clean, straightforward layout perfect for buyers who want comfort without complexity. With a main unit length of 39′-0″ (plus a 13′-8″ screened porch) and a width of 11′-8″, this model includes a roomy living area, a full kitchen with a bar-top counter, a private bedroom, and a well-appointed bathroom. It’s ideal for couples, solo residents, cabin rentals, or seasonal placements where space, flow, and low maintenance matter most.










Every Trailhead 4B 126 is crafted by 4B Cabin Company with the same reliable construction standards used across all of our Park Model RVs.


All finishes may be customized with Sherwin-Williams paint/stain choices and upgrade packages.
Trailhead 4B 126 is built for simplicity and smooth everyday living.

We help every buyer understand the full process—logistics, zoning, delivery, and realistic cost expectations—based on our firsthand experience installing units since 2017.
We offer detailed advice on:
We help buyers understand lenders, what to expect during approval, and how Park Model RV loans typically work.
Call us or click the button below to receive a detailed, no-surprise quote for the Trailhead 4B 126, including delivery and expert advice on your unique setup costs.
10 Years Airbnb Superhost • Proven Rental Success • Real-Life Tiny Home Operators