















The Whispering Pines is built with quality and insulation in mind, ensuring year-round comfort regardless of location. The solid construction includes:
This model is delivered with essential utilities pre-installed, including Pex water lines, cut-off valves, and a 100 AMP Electrical Panel Service.

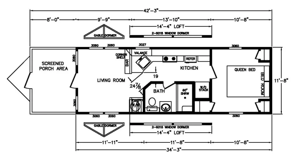
The clever layout of the Whispering Pines 4B 100 ensures every inch is usable:

We offer competitive pricing due to our business model and provide vital, hands-on guidance for site preparation, zoning, and transport. This model arrives ready for utility hookup.
Call us or click the button below to receive a detailed, no-surprise quote for the Whispering Pines 4B 100, including delivery and expert advice on your unique setup costs.
10 Years Airbnb Superhost • Proven Rental Success • Real-Life Tiny Home Operators