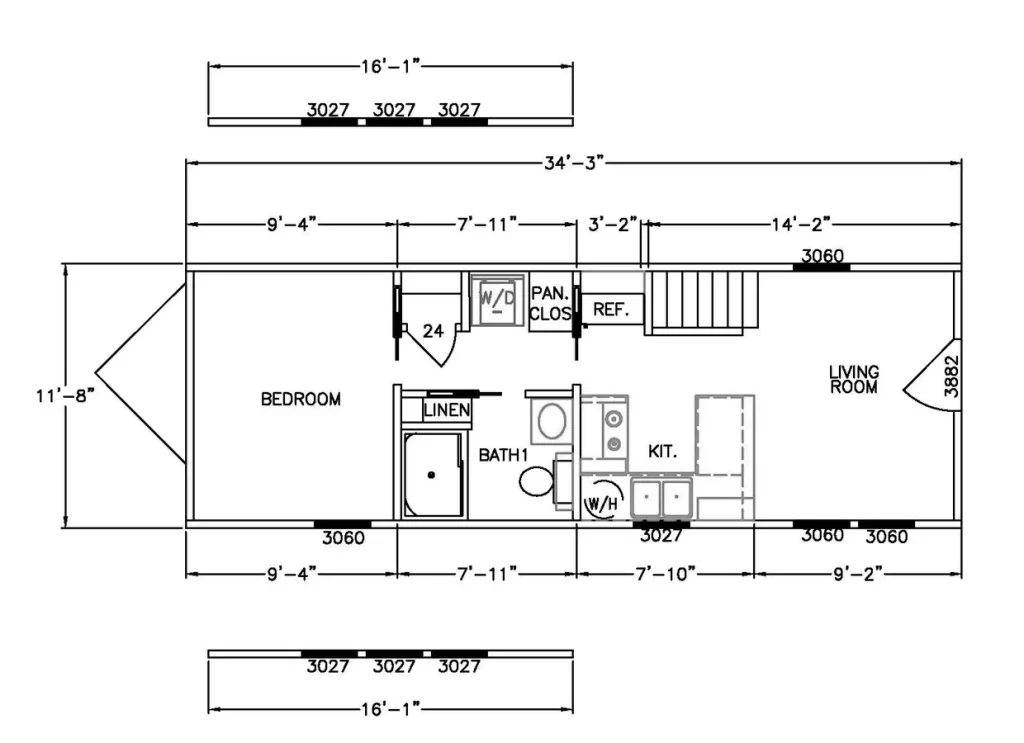
Campfire Bliss 4B 116 is a well-designed compact Park Model RV that prioritizes ease of living without compromising comfort. With a main unit length of 34′-3″ and a width of 11′-8″, this model delivers an open living room, a practical kitchen layout, a full bathroom, a large private bedroom, and smartly placed storage throughout. Ideal for singles, couples, rental uses, or seasonal placements, Campfire Bliss is straightforward, comfortable, and easy to maintain — a perfect blend of affordability and livability.







As with all Living Well Cottages homes, Campfire Bliss is built by 4B Cabin Company using high-quality materials and proven construction standards for long-term performance.


All finish options may be customized with Sherwin-Williams colors and upgrade selections.
Campfire Bliss 4B 116 keeps everything on one level with a simple, functional design.

We provide clear, practical advice for:
We help buyers understand lender expectations and budgeting needs.
We advise reserving at least $10,000 for delivery and setup expenses.
Call us or click the button below to receive a detailed, no-surprise quote for the Campfire Bliss 4B 116, including delivery and expert advice on your unique setup costs.
10 Years Airbnb Superhost • Proven Rental Success • Real-Life Tiny Home Operators