A streamlined, open-concept Park Model RV with a walk-in shower and extended open porch.
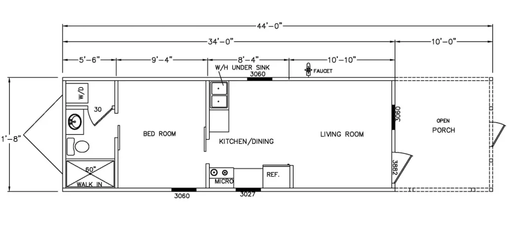
The Rustic Ridge 4B 108 is designed for buyers who want simplicity, comfort, and efficient single-level living in a beautifully balanced open layout. With an overall main-unit length of 34’-0” and a full length of 44’-0” including the porch, plus a width of 11′-8″, this model offers easy movement, a large living room, an open kitchen/dining zone, a private bedroom suite, and an inviting 10’-0” deep open porch. It’s an excellent fit for full-time living, weekend retreats, or scenic placements on mountain and lakeside properties.








All Living Well Cottages models share the same proven, durable construction from 4B Cabin Company. Rustic Ridge delivers long-term comfort, strong insulation, and the craftsmanship expected in every Park Model RV we offer.


All models may be customized with paint, stain, countertop patterns, and metal panel colors.
The Rustic Ridge 4B 108 features a clean, efficient, no-loft design perfect for buyers who want accessibility and clear separation between living and sleeping spaces.

Your Rustic Ridge 4B 108 purchase includes more than the home itself—you gain access to our years of hands-on installation expertise.
We assist with the details that matter most:
We provide guidance on tiny home financing options and help buyers understand typical lender requirements.
We recommend having at least $10,000 saved for delivery and setup costs.
Call us or click the button below to receive a detailed, no-surprise quote for the Rustic Ridge 4B 108, including delivery and expert advice on your unique setup costs.
10 Years Airbnb Superhost • Proven Rental Success • Real-Life Tiny Home Operators